Продажа 1-комн. квартиры, 42 кв.м
г. Краснодар, Карасунский округ, Хлопчатобумажный комбинат
номер объекта 119105220
дата обновления: 15.12.2025
100% реальный объект
Санузел
Отопление
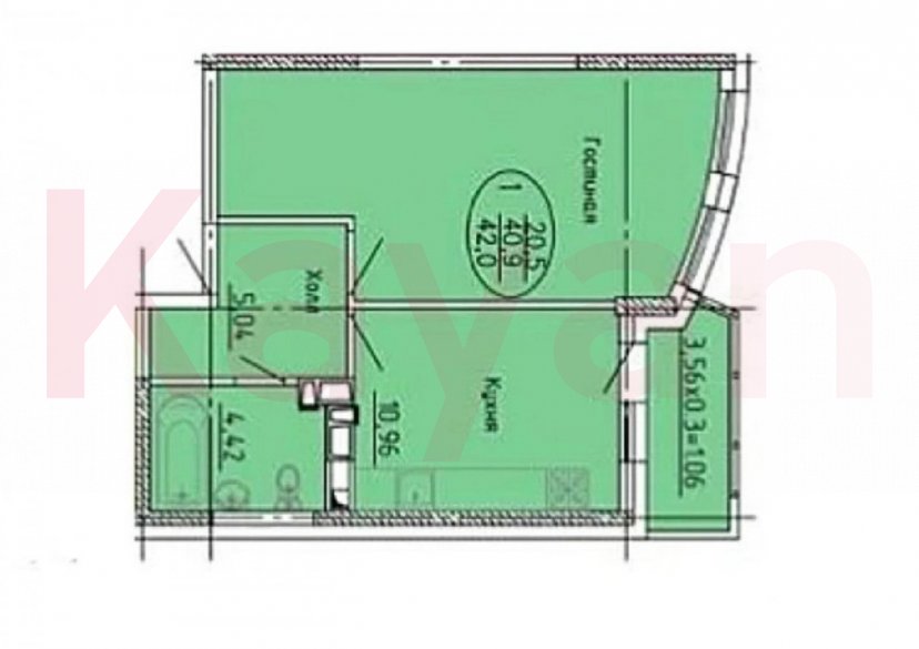
Планировка
Изолированная
Балкон
Вид из окна
Дата постройки
2024
Продаётся уютная однокомнатная квартира площадью 42 квадратных метра на седьмом этаже нового монолитного дома, расположенного по адресу: город Краснодар, микрорайон ХБК, Уральская улица.
- Жилая площадь составляет 20.5 квадратных метров, кухня занимает 10 квадратных метров, что создает достаточно пространства для комфортного проживания.
- Особенностью данной квартиры является наличие балкона, с которого открывается вид на улицу, а также приятная новость для тех, кто любит заниматься спортом или просто проводить время на свежем воздухе – во дворе дома расположены детская и спортивная площадки.
- Для автовладельцев предусмотрены удобные варианты парковки: как во дворе, так и подземная парковка.
- Безопасность жителей обеспечивает закрытая территория и кодовая дверь.
- Новый дом 2024 года постройки обещает современные решения в области строительства и комфорта жильцов.
- Всего в доме 20 этажей, что позволяет наслаждаться жизнью без лишнего шума и суеты типичных многоэтажек. Хотя квартира продается без предварительного ремонта, это открывает прекрасную возможность обустроить жильё полностью под себя, воплотив все свои дизайнерские идеи и предпочтения.
- Приобретая эту квартиру, вы выбираете комфортное проживание в новом современном доме с развитой прилегающей инфраструктурой.
Звоните, отвечу на все вопросы и покажу в удобное для вас время.
Возможен онлайн показ.























































