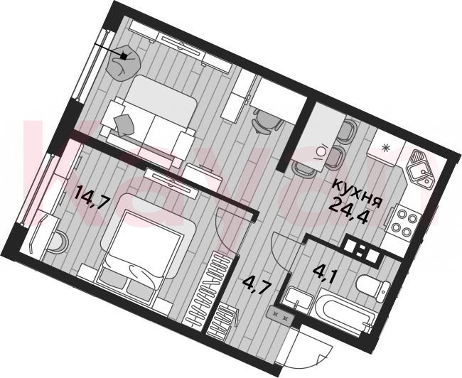
Продажа 1-комн. квартиры, 47.9 кв.м
ул Западный Обход
Жилой комплекс представляет собой комплексную застройку, которая включает в себя 36 корпусов, построенных по долговечной кирпично-монолитной технологии. В оформлении стен используется облицовочный кирпич. Во всех домах выполнена дизайнерская отделка входных групп.
В комплексе предложено множество планировочных решений: в наличии квартиры, как классического типа, так и европланировки. Сдаются они с подчистовой отделкой, системой «Умный дом» и высотой потолков от 2,72 метра.
На территории ЖК расположены велодорожка с вечерней подсветкой и спортивная аллея с пунктом аренды велосипедов и самокатов, так же для жителей предусмотрено озеро с благоустроенной прибрежной зоной. В комплексе спроектированы фитнес центр с бассейном, свои детские сады и школы, организованы детские и спортивные площадки, реализованы зона барбекю и ресторан с террасой. Собственный парк микрорайона содержит в себе уникальный набор элементов благоустройства: перголы, зеленые арки, фотозоны и арт-объекты, элементы геопластики и скульптуры. Планировочная структура парковой зоны создает сеть дорожек, беседок и стилизованных объектов, которые приводят к жемчужине парка — центральному скверу с фонтаном. В микрорайоне расположен оздоровительный центр и храм для жителей.
Жилой комплекс находится в Прикубанском округе. В шаговой доступности расположены продуктовые магазины, детские сады и школы, аптеки и салоны красоты. За 20 минут транспортом можно добраться до ТРЦ «Красная площадь», спортивного комплекса «Баскет-холл» и центра Краснодара.























































