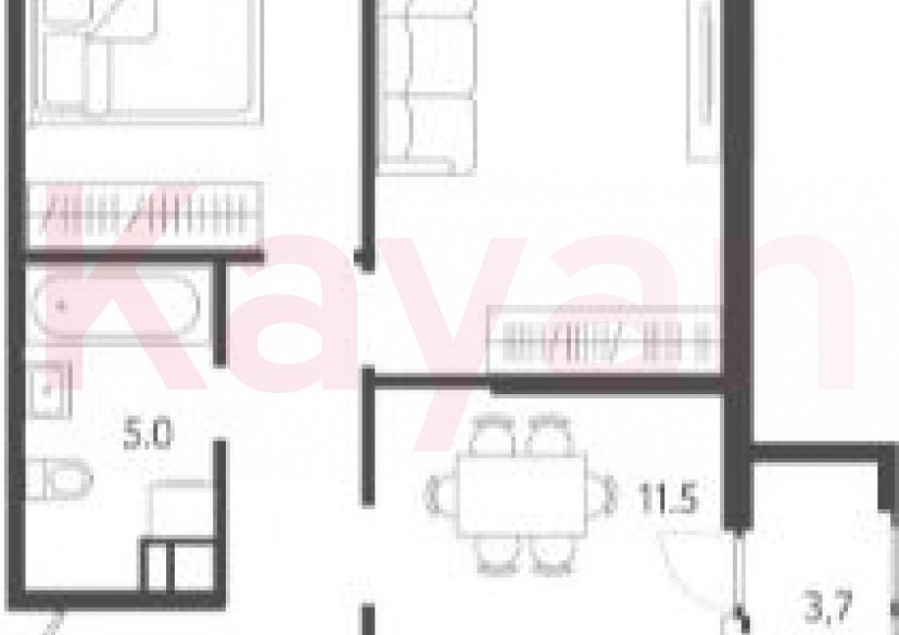
Продажа 2-комн. квартиры, 53.7 кв.м
ул Колхозная
Проект, построенный по самым передовым технологиям, включает в себя 9 домов высотой от 19 до 24 этажей. В подъездах выполнена премиальная дизайнерская отделка. Входные парадные имеют два входа: со двора и улицы.
В ЖК предложено множество планировочных решений: в наличии квартиры, как классического типа, так и европланировки. Сдаются они с подчистовой отделкой.
Вход на охраняемую территорию комплекса осуществляется по Face ID. На стилобате создан уникальный двор-парк с современными игровыми плейхабами и спортивными площадками. Так зона коммерческого кластера с магазинами, пунктами доставки, аптеками и кафе отделена от зоны для отдыха и прогулок. Для автовладельцев в комплексе предусмотрена многоуровневая закрытая парковка с широкими машиноместами, а также паркинг вокруг комплекса. В стилобате разместился подземный паркинг со спуском на лифте. Расчеты произведены на 2 автомобиля на человека. В шаговой доступности на территории есть своя школа и детский сад.
Жилой комплекс возводится в центральном районе Краснодара. Вокруг — одноэтажная застройка, поэтому из окон комплекса открывается лучший панорамный вид на исторический центр и достопримечательность — Парк Галицкого. Дорога до центра города займет 10 минут транспортом.































