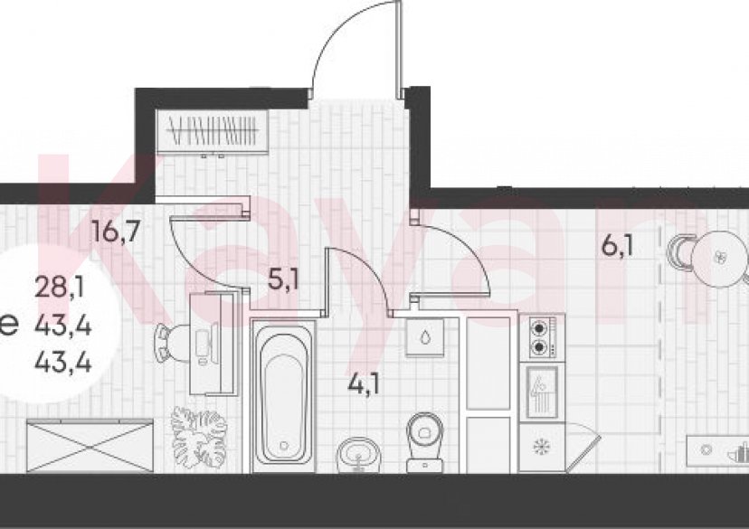
Продажа 2-комн. квартиры, 43.4 кв.м
ул Заводская
Жилой комплекс представляет собой кирпично-монолитное здание, состоящее из 7 секций с переменной этажностью от 13 до 16 этажей. Корпус возведен по долговечной кирпично-монолитной технологии, вентилируемые фасады облицованы кирпичом. В проекте выполнена дизайнерская отделка входных групп, установлены современные лифты.
В проекте предложено множество планировочных решений, начиная от уютных студий до просторных четырехкомнатных квартир. Сдаются они с подчистовой отделкой, панорамными окнами и высотой потолков 2,8 метра.
Территория комплекса благоустроена и озеленена. Здесь раскинулись широкие зелёные аллеи прогулочных зон, клумбы и кустарники. Во дворе спроектированы безопасные детские площадки с песочницами, горками и качелями. Также предусмотрены места для спорта и зоны отдыха. Во дворе комплекса возведена школа. Для владельцев автомобилей предусмотрены зарядные станции, многоуровневый паркинг, а также стоянка.
Жилой комплекс расположен в развитом районе города, где есть вся необходимая инфраструктура. Недалеко от комплекса располагаются торговые центры, школы, детские сады, а также поликлиники. До центра города можно добраться за 10 минут транспортом.








































