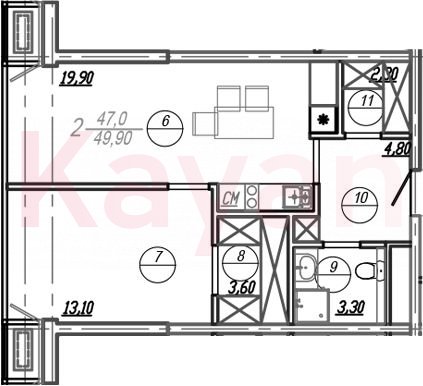
Продажа 2-комн. квартиры, 48.4 кв.м
ул Аэродромная
Жилой комплекс состоит из корпуса высотой в 17 этажей. Здание возведено по качественной монолитной технологии, с использованием комбинированных фасадов. В проекте выполнена дизайнерская отделка входных групп, установлены современные скоростные лифты.
В проекте предложено множество планировочных решений, как классического типа, так и европланировки. Сдаются апартаменты с чистовой отделкой, панорамными окнами и высотой потолков от 2,7 до 3 м.
На территории комплекса выполнен ландшафтный дизайн. Здесь можно найти фитнес-зал, а также ресторан. Для резидентов предусмотрены услуги консьержа. Для владельцев автомобилей предусмотрена стоянка.
Жилой комплекс расположен в центральном микрорайоне, в самом центре Краснодара. Здесь есть вся необходимая инфраструктура: школы, магазины, детские сады, поликлиника, аптеки. За 2 минуты можно добраться до ТЦ Галерея.



























