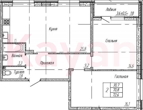
Продажа 2-комн. квартиры, 70.3 кв.м
ул Пригородная
Элегантная архитектура клубного квартала сочетает в себе скандинавский минимализм и эко-тренды. Всего возводится 7 домов с переменной этажностью, вентфасады которых выполнены в насыщенных оттенках серого, терракотового и песочного цвета. В холлах выполнена дизайнерская отделка.
В проекте предложено множество планировочных решений: в наличии квартиры, как классического типа, так и европланировки. Сдаются они с подчистовой отделкой и высотой потолков 2,7 метра.
В проекте предусмотрена закрытая территория, спроектированая по концепции «безбарьерная среда». На придомовой территории расположены лаундж зоны, сенсорные сады, места для пикников, эко-площадки для детей, зоны активного отдыха и спорта, кофейни, тренажерные залы, шоурумы и барбершопы. Так же в проекте предусмотрено 2 детских сада с ясельными группами. Для владельцев автомобилей спроектирован подземный паркинг с прямым доступом на лифте, круглосуточной охраной и видеонаблюдением.
Жилой комплекс находится в районе Баскет-холл. В шаговой доступности находится спортивный клуб «Баскет-Холл» и спортивный парк «Достижение». До исторического центра Краснодара дорога займет всего 20 минут. Расстояние до Черного и Азовского морей — 150 км.









































