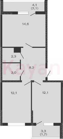
Продажа 2-комн. квартиры, 52.3 кв.м
ул Минометчиков
Жилой комплекс включает в себя 10 четырехэтажных корпусов. Дома возведены по долговечной кирпично-монолитной технологии, фасады украшены штукатуркой терракотовых и молочных оттенков. В ЖК сделана дизайнерская отделка входных групп, установлены современные высокоскоростные бесшумные лифты. На первых этажах расположены колясочные и велосипедные.
В жилом комплексе предложены квартиры с различными планировками: от студий до двухкомнатных квартир классического типа. Сдаются они без отделки, со стандартными окнами, высотой потолков 2,7 метра и оснащены системой «Умный дом».
На закрытой территории комплекса предусмотрено видеонаблюдение. Во дворах расположены детские площадки для разных возрастов, спортивные площадки и зоны отдыха. Вдоль всего комплекса проложена аллея с масштабным озеленением. Внутри комплекса предусмотрены школа, спортивный комплекс и эко-маркет. На первых этажах расположены коммерческие помещения. Для владельцев автомобилей предусмотрена стоянка.
Жилой комплекс расположен в экологически чистом районе станицы Марьянской. В непосредственной близости находятся школы, детские сады, поликлиники, магазины и другие нужные социальные объекты инфраструктуры. До центра города Краснодар можно добраться за 50 минут транспортом.






































