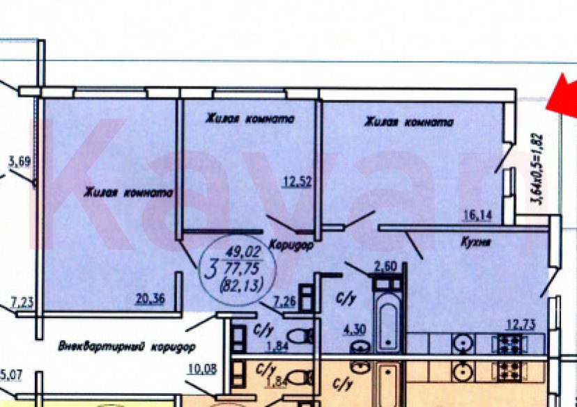
Продажа 3-комн. квартиры, 77 кв.м
г. Краснодар, Прикубанский округ, Клиника микрохирургии глаза
Эксклюзивно в КАЯН
номер объекта 98644596
дата обновления: 19.03.2026
100% реальный объект
Санузел
Отопление
Планировка
Изолированная
Балкон
Вид из окна
Продается отличная трехкомнатная квартира площадью на 9 этаже 16-этажного блочного дома! Эта квартира идеально подойдет для семей с детьми, а также для тех, кто ценит комфорт и удобство городской жизни, не отказываясь от тихих уголков природы.
- В квартире выполнен ремонт от застройщика, что позволит вам сразу же заселиться. Удобная изолированная планировка включает просторную гостиную и две уютные спальни. Два балкона обеспечивают дополнительное пространство для отдыха и хранения. Раздельный санузел добавляет удобства в повседневной жизни. Средний этаж дарит оптимальный баланс между видом и легкостью доступа.
- Дом расположен в живописном и спокойном районе. Во дворе есть детские и спортивные площадки для активного отдыха! Открытая парковка позволяет без труда найти место для вашего автомобиля. Прямо напротив — Академический сквер, где приятно гулять и наслаждаться свежим воздухом. Рядом находится Храм в честь иконы Божией Матери.
- Чудесная транспортная развязка позволит вам быстро добраться до любого уголка города. Остановки общественного транспорта находятся всего в 2 минутах пешком. Вам не придется убивать время на дорогу!
В шаговой доступности расположены:
- Большой лечебный комплекс с поликлиниками для детей и взрослых, отделением микрохирургии глаза и женской консультацией, а также много медицинских лабораторий.
- Школы №63, №16, №45 и более 7 частных детских садов.
- Разнообразные магазины, включая "Магнит" и "Пятерочка", аптек (в том числе круглосуточные).
- Спортивный клуб и тренажерный зал, ботанический сад, что обеспечит вам активный и здоровый образ жизни.
Квартира продается без обременений, что сделает процесс покупки максимально простым и прозрачным. Возможна ипотека, что позволяет каждой семье осуществить мечту о собственном жилье!
Не упустите шанс стать владельцем квартиры в замечательном районе с развитой инфраструктурой и комфортом! Звоните, чтобы договориться о просмотре!







































































