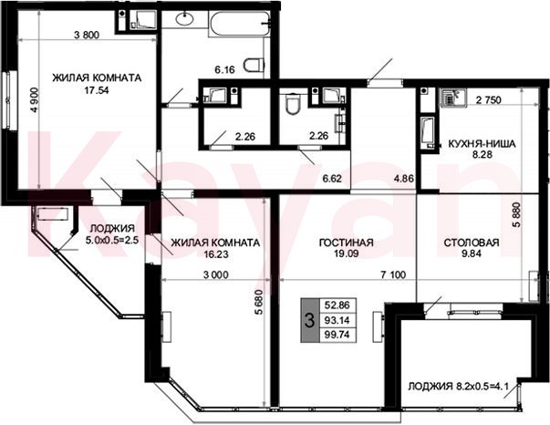
Продажа 4-комн. квартиры, 93.14 кв.м
ул Ветеранов
Жилой комплекс состоит из 5 корпусов высотой от 12 до 16 этажей. Дома построены по долговечной кирпично-монолитной технологии. В оформлении стен используется облицовочный кирпич. Во всех входных группах выполнена дизайнерская отделка и установлены современные лифты.
В жилом комплексе предложено множество планировочных решений: в наличии квартиры, как классического типа, так и европланировки. Сдаются они с подчистовой отделкой и высотой потолков 2,7 метра.
В проекте предусмотрены видеонаблюдение во дворах и собственная управляющая компания. На территории комплекса расположен детский сад и свой торговый комплекс. Во дворе выполнен ландшафтный дизайн, спроектированы различные зоны активности, современные детские и спортивные площадки.
ЖК находится в мкр. Энка. Рядом расположены Табрис, ТЦ «Красная Площадь», Ледовый дворец, Музей «Россия — моя история», Баскет Холл, Парк им. 300-летия полиции России, Выставочный центр Экспоград-Юг, магазины, кафе, школы и детские сады.


























