Продажа коммерции, 258 кв.м (Свободного назначения)
г. Краснодар, Карасунский округ, Гидростроителей мкр.
номер объекта 55079310
дата обновления: 20.10.2025
100% реальный объект
Санузел
Отопление
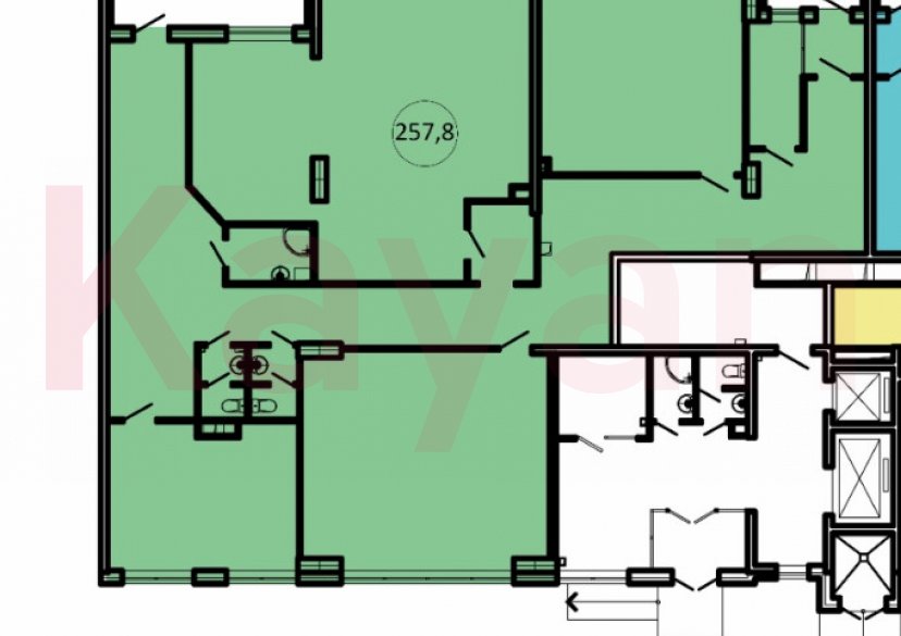
Продается коммерческое помещение в Жилом комплексе.
Успейте купить!
- первый этаж
- 257,8 кв.м.
- витражные окна
- на две стороны
- черновая отделка
- ровные полы
- 2 отдельных входа
- несколько мокрых точек
- высота потолков 3 м.
Комплекс сдан в 2018 году. Состоит из 3 домов, более 900 квартир.
Благоустроенная территория.
Развитая часть микрорайона Гидростроителей. Хорошая транспортная доступность. В шаговой доступности Поликлиники-детская и взрослая, детские сады, школы
Сетевые арендаторы рядом: Пятерочка. Магнит, Fix price, Пункты выдачи, детский бассейн.
Без комиссии для покупателя.
Остались вопросы? Звоните!

























