Продажа коммерции, 42 кв.м (Свободного назначения)
г. Краснодар, Прикубанский округ, Петра Метальникова
номер объекта 108066663
дата обновления: 21.12.2025
100% реальный объект
Санузел
Коммерческое помещение свободного назначения в жилом развивающемся районе!
Основные характеристики:
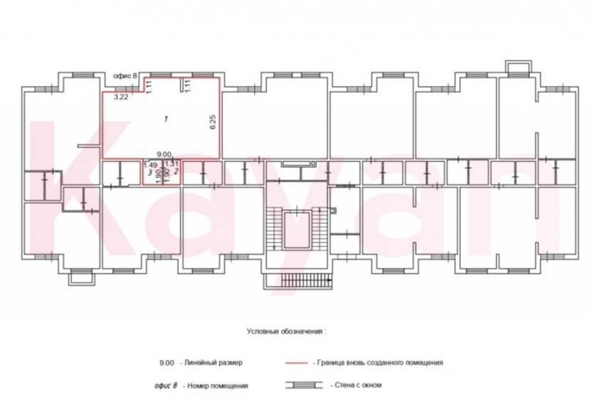
- общая площадь 42 м кв.
- вxoдная гpуппа выполнeнa нa уpовне тpoтуapa
- высота потолков: 3,5 м
- отделка " Whitе box"
- отдельный вход с улицы
- без барьерный доступ
- возможность размещения рекламы
Технические параметры:
- электроснабжение: 5 кВт
- центральные коммуникации
- водоснабжение
- канализация
- отопление
Локация и преимущества:
- динамично развивающийся район
- стабильный поток потенциальных клиентов
- детская и спортивная площадки
- удобная парковка
- прогулочная зона
- новый детский сад
- строящаяся школа на 1500 мест
- высокий пешеходный трафик
Идеально подходит для:
- студии
- офисного помещения
- сервисных услуг
Звоните!


































